真实测评:奶西村地块虽已“出圈”,但也有不足,看好再买
真实测评:奶西村地块虽已“出圈”,但也有不足,看好再买
崔各庄(南皋村)四兄弟的混战中,老四绿城晓风印月刚加入,出圈的奶西村地块已磨刀霍霍。
刚踩完太阳宫地块的局长,深感三环的繁华,隔天实探中建和首开刚竞得的奶西村地块。话不多说,先上一波实拍。






地块实拍

西侧东洲家园
1►
有潜力的发展板块,商业医疗是短板

两地块位于奶西村,还是惯例,先看看大的区位。奶西村位于朝阳望京西北,北苑东,被北五环与京承高速隔开,距离京承高速约1.36公里,距离孙河别墅区直线约4公里。虽然板块内分布着汽配城、文创园等产业园区,且东侧奶东村打造了北京首个艺术金融国际创新园区,但文艺气息养成绝非一天能行。不过,值得期待的是,地块东南2公里左右,未来3年后有阿里新北京总部圈层红利可享,更有电子城北区的加持,价值可提升,不可避免地正在成为下一个大望京板块。

不过目前,局长亲探的感受是,城市界面一般,如果说朝阳的三环太阳宫是英伦风,那么五环的奶西村,一下子就变成了乡村田园风。奶东村为自留村,整体建筑为三层,人员多为租房人群。

这城市界面的转化,缘何?奶西村棚户区改造规划今年才基本定下来。


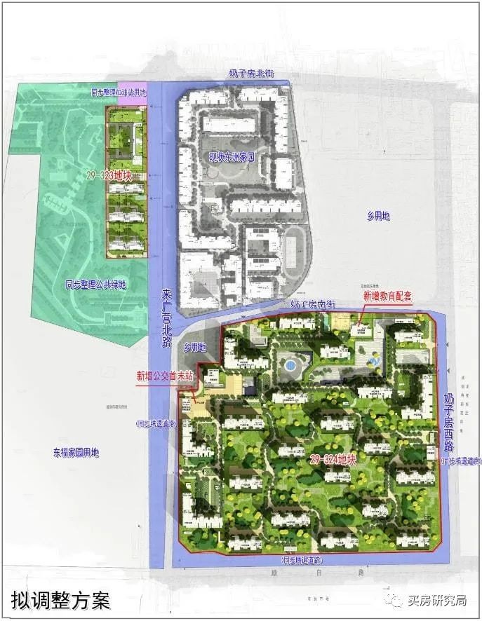
好消息是,除住宅用地外,区域规划了约3.05公顷的综合性商业金融服务业用地和约2.79公顷的公共服务配套设施用地。包括9班编制的托幼所和27班编制的九年一贯制学校各一所。




地块具体位于来广营北路东侧、顺白路北侧,京承高速西侧,自驾十分便利。局长亲测,可从来广营北路直达北五环的广顺桥,15分钟到达望京商圈。搜索百度地图得知,自驾前往北苑需10分钟,国贸、三元桥需25分钟、中关村需28分钟,半个小时工作圈,妥妥的,没问题。

善各庄地铁站周边
自驾很方便,但公共交通匮乏,不邻铁,距离最近的是14号线善各庄站,2.2公里,只能依靠公交869路或单车出行。插一句踩盘过程,10点不到,善各庄作为14号线终点站,车上只有局长一个人,也是人生第一次经历。地铁出来周边满满的荒凉感。
另距13号线北苑站2.5公里,距望京地铁站6公里左右,公交车15分钟,还是很快的。有人会问,不是有轨道规划吗?17号线勇士营站(5公里左右)和13号线B段,但不确定落地时间,就先别期待。


公交线路有855路、869路、944路、939路等,可以通勤地铁善各庄站、北苑站、望京站、顺义等地。

交通说完了,来说说买房人比较关心的医疗、教育、商业等配套,目前教育资源有东洲家园旁的芳草地国际学校、陈经纶中学、国资中心幼儿园等。


商业医疗资源几乎没有,目前只能社区商业和社区卫生服务站。局长问了东洲家园的居民,其回答道西侧据说是商业配套,停工近两年了。

望京商圈
大型商业望京商圈比较多。另外上述提到的商业用地建成后会好些。
医疗周边较近的是东侧2公里左右的惠尔康医院奶东分院,另外周边有两个养老机构。


值得期待的是,来广营地区将投资两家医院,分别是:朝阳园北区国际医院、来广营2.99配套医院。其中朝阳园北区国际医院投资更是高达60亿元!
生态资源是奶西村的长板。地块直线2公里范围内西侧有清河营郊野公园,北侧有温榆河公园、东侧有奶东公园、南侧有朝来森林公园。

局长在来广营北路旁还发现了水田,看着像莲花和稻秧,这也是田园风很浓了。
综上,交通教育还算接受得了,商业医疗缺乏,生态环境好的奶西村地块,更适合年轻家庭,上班在望京、北苑、亚运村甚至中关村等区域,或养老需求,更喜欢安静生活方式的家庭,都可以关注起来。
2►
产品大猜想,高标准、稀缺洋房

未来,这块区域仍有供地,这就导致出现踩踏行情,很多项目产品同质化之后,让买房人眼花缭乱,无从下手。而奶西村目前2个地块的楼面地价与销售指导价之间有约3万/平价差,尤其首开竞得地块价差超4万/平,有媒体粗略计算出,首开竞得地块的项目毛利率≈34.84%。其竞得的319-320地块大概率会做小高层产品,单套如果算120平,一共753套房。首开深耕北京,值得信赖。如果做部分小户型,主打刚需刚改,价格估计600万起步,可以说没有竞品,不愁卖。

318地块,打造低密洋房可以说板上钉钉,虽说中建房山某项目闹了机械车位问题,但产品设计整体ok,既然中建这么加足马力拿地,或会做叠拼产品,直接对标周边北苑板块的天润福熙大道,吸引品质改善人群,且总价优势很大,大概1000万起步。该地块要建设高标准住宅,无配建。
3►
朝阳北年轻、养老家庭置业首选

奶西村周边几大板块房价地图


较近的北苑板块二手房价一直在上涨,2020年开盘的华贸铂金墅总价1770万/套起;

在售尾盘天润福熙大道飙到了12万/平,2020年开盘在售户型为叠墅四居,2190万/套,137平1824万/套;

润泽御府,2021年开盘,近千平大户型在售,最低6000万起。

区域一直没有住宅新盘入市。供应少,二手房价格直接拉高。2010年的润泽悦溪,挂牌均价105823元/平。部分房源达到约13万/平,10年间涨了10倍。相比来看,奶西村地块倒挂优势明显。


臻园实拍及价格
再看局长亲测的望京地铁站A口附近二手房源,比如臻园、南湖东园、望京花园等。


南湖东园价格及实拍
再就是东南侧2024年交付的阿里新总部周边,之前没赶上望京府、华樾北京的,可以等一等奶西村了。
奥森板块的二手房挂牌均价在8-9万/平,次新房项目在12万/平左右。

做核酸检测的队伍
具体到地块紧邻二手房,只有2015年的东洲家园自住房,57377元/平。当时限价2.2万翻了4倍,到如今地块指导价8.9万,omg!

新房方面,周边无竞品,近些的是距离7公里的火热的崔各庄南皋村4兄弟,也都不邻铁,不如奶西村地块畅达性高,不过文艺底色较浓厚,也能承接望京、酒仙桥外溢需求。看价格的话,绿城·晓风印月102平户型总价最低850万元起。其余请看测评,不再赘述。如果奶西村地块降价到相同的价格,有望京加持,产品不愁卖。还有一点就是4兄弟不如奶西村地块纯粹。
东侧直线距离4公里的孙河板块,合院、平层居多,都是2000万级起步,以及4000万级,如果刚改人群,还是考虑一下预算比较好。1000万,还是考虑奶西村吧。
其实局长没真正认识崔各庄奶西村之前,一直以为其隶属于昌平,抱歉了,对不住粉丝。如果昌平置业还有粉丝会问到最近的建发珺和府,600万左右也ok。具体看测评。局长只想说城市界面也不太好,还属于昌平,不多说了。
再来说海淀,奶西村离中关村半小时车程,那么海淀永丰双子也比不上奶西村的品质以及性价比。
综合来看,奶西村这个区域,尽管红海,但依旧非常值得买。虽地块配套一般,但背靠北苑和望京,尤其望京板块产业聚集效应较强,未来升值空间还是很大。且有一定的一二手房价倒挂优势,各位打新,还追求品质的,绝对ok。
等售楼处开放,局长诚邀各位对项目感兴趣的粉丝,参与局长专属优惠看房团一同去参观品鉴,请扫下方二维码报名吧!

-
- 探秘《舌尖2》出镜饭店 三林本帮馆:1小时切出一盘扣三丝
-
2025-07-03 02:50:10
-
- 韩国这些电影排前十名 4部19禁电影上榜 你看过几部?
-
2025-07-03 02:47:55
-
- 从副国级到阶下囚-宁波人-陈良宇
-
2025-07-03 02:45:40
-
- 火星探测器,都有哪些特点?
-
2025-07-03 02:43:25
-
- 珠海一中教育集团阳西一中揭牌
-
2025-07-03 02:41:10
-
- 异性相处,最舒服的关系莫过于此。
-
2025-07-03 02:38:55
-
- 后续!福建一保安怒砍1家3口!知情人曝光原因,警方介入
-
2025-07-03 02:36:40
-
- AI科普微短剧丨月到中秋,小兔子如约而至
-
2025-07-03 02:34:26
-
- “绥”字不读tuǒ,那该怎么读?“建极绥猷”是什么意思呢?
-
2025-07-03 02:32:11
-
- 推荐10部中国西北风电影,感受西部电影的朴实
-
2025-07-03 02:29:56
-
- 铁血战将曾泽生:滇军出身,台儿庄血战日寇,起义之身鏖战汉江
-
2025-07-03 02:27:41
-
- 老潍县仿古铜技艺历史悠久 赵益民自学成才
-
2025-07-03 02:25:26
-
- 朱迅现身,没滤镜,嘴歪脸斜差点认不出来,穿着倒是很亮眼
-
2025-07-03 02:23:11
-
- 十大气势磅礴的歌曲,快来给自己打打气!(21首歌曲歌单推荐)
-
2025-07-03 02:20:57
-
- 中国典型生产安全事故(277)上海静安高层公寓“11.15”特大火灾
-
2025-07-03 02:18:42
-
- 从新舟60到ARJ21,国产百座级支线客机发展历程
-
2025-07-03 02:16:27
-
- 孟加拉女总理仓皇出逃画面曝光,将从印度前往伦敦
-
2025-07-03 02:14:12
-
- 池昌旭朴敏英治愈夫妇都整容 盘点韩星整容进化史
-
2025-07-03 02:11:57
-
- HBO“黄暴”神作《斯巴达克斯》,15名女性结局,你还记得吗?
-
2025-07-03 02:09:42
-
- 1年半4次手术,也要和小鲜肉“纵欲”的萧亚轩,如今早已面目全非
-
2025-07-03 02:07:27



乔任梁遗照(乔任梁 遗照)
刘德华两个儿子(刘德华有个儿子)
车晓老公(车晓老公个人资料)
民国四大无耻文人:郭沫若/老舍/臧克家/冯友兰(四大文人败类)
黄海波的父亲(黄海波父亲是黄宗洛)
三公的游戏规则是什么?一般可以几个人玩?
退役后,申请二次入伍的条件及优待
QRL遗照手臂太可怕(qrl遗照手臂丢失)
章子怡国籍是哪国(章子怡是中国籍吗)
原神刻晴的乳液狂飙图片刻晴乳液狂飙图是什么漫画