寮步凫山片区26.18公顷控规调整 东莞地铁3号线要来了吗?
寮步凫山片区26.18公顷控规调整 东莞地铁3号线要来了吗?
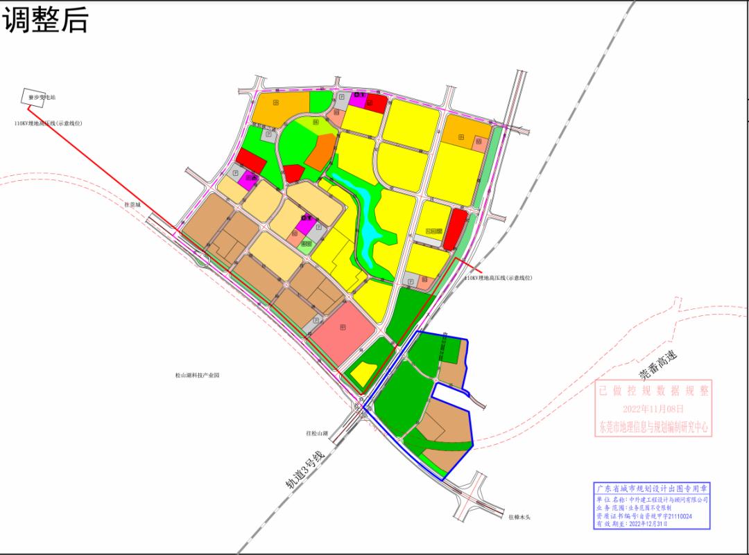
12月14日,东莞自然资源局发布了寮步凫山片区控规调整的批前公示,其中涉及到地铁3号线的信息。
早在今年年初,地铁3号线就曾传出信息,有可能会于年底开工,这次控规调整意味着距离工程动工的时间又进一步。

01
控规调整细节
根据《寮步镇凫山片区控制性详细规划》显示,本次调整主要涉及到A-02、A-04等街坊调整,调整范围面积约26.18公顷,范围内未编控规。
主要涉及四个方面:
1、调整后面积为194.10公顷,较调整前增加26.17公顷。
2、落实轨道3号线线位,并落实相关管控要求;落实莞番高速红线。
3、C-08-03、 C-08-05、 C-08-06 、 C-08-07地块,用地性质均为一类工业用地(M1),容积率调整为3.0。
4、新增海绵城市和5G通讯基础设施建设要求。

02
东莞地铁R3线
根据官方发布的控规图,上面有明确标准地铁3号线位置。
关于东莞地铁3号线的消息,今年6月曾发布方案优化调整,3号线一期工程地下线将由34.3公里增加到51.5公里,总投资由302.9亿元增加到368.1亿元,其中直接工程投资由157.5亿元增加到227.9亿元,项目建设工期为6年。

其中提到地铁3号线一期进展,正加快开展工程可行性研究及投融资研究,争取年内完成3号线一期工可报告上报审批,并根据市财政实际情况争取实现开工建设。

调整后地铁3号线大致有以下站点:交椅湾站、交椅湾北站、长安建安路站、长安金沙站、长安乌沙村站、长安步行街站、长安汽车总站、海悦花园站、松山湖企业总部站、金多港站、松山湖大学城站、松山湖站、松山湖北站、东坑大道站、常平北环路站、常平北站、常平火车站和东莞东站,这些站点完美串联东莞城区、松山湖、滨海湾等东莞重要核心区域。

这次控规调整,无疑是将地铁3号线一期进度又推进了一步,期待正式动工的一天。
03
区域详情
关于寮步的凫山片区,一直都是松湖片区的热门区域之一。之所以备受关注,是因为凫山片区拥有绝佳地段,与松山湖CBD仅一路之隔,距离已开业的华润万象汇直线距离约1公里。

目前,凫山片区已经开发的小区有中惠松湖城、万科松湖传奇、源悦、万科左岸等,万科松湖传奇的二手挂牌价大约在2.1-2.6万/㎡之间。

作为对接松山湖CBD的第一站,寮步凫山片区将逐步改造成集居住、教育、商业、生态于一体的中央生活居住区。
-
- LPL女主持赛后采访时,短裙一直挂着不明物体,网友:C字创可贴?
-
2025-08-10 14:51:28
-
- 虎牙秋枫黑屏豪刷骚俊,即将签约血色?中国蓝“阿斗”小鲁班灭灯
-
2025-08-10 14:49:13
-
- 隔夜南瓜叶能吃吗?南瓜叶的功效与作用
-
2025-08-10 14:46:58
-
- 杞人忧天的翻译简单版(初中古文简单翻译:杞人忧天)
-
2025-08-10 14:44:43
-
- 福字可以提前贴吗 福字什么时候贴最好
-
2025-08-10 14:42:28
-
- 老戏骨范明:娶大6岁的二婚妻子,将继子视如己出,如今已成骄傲
-
2025-08-10 12:33:37
-
- 印度半岛概况
-
2025-08-10 12:31:22
-
- 安徽省利辛县概况
-
2025-08-10 12:29:07
-
- 案例揭秘:国药控股一年的待遇和收入咋样?公司到底如何?
-
2025-08-10 12:26:52
-
- 55岁男子冒充16岁富二代QQ引诱12至14岁少女裸聊猥亵,同时诱骗强奸未成年
-
2025-08-10 12:24:37
-
- 湖南省耒阳市概况
-
2025-08-10 12:22:21
-
- 5万美军合围下的180师,为何是志愿军永远的伤痛,汉江边的悲歌
-
2025-08-10 12:20:06
-
- NBA球星篇-迈克尔·乔丹(Michael Jordan)
-
2025-08-10 12:17:51
-
- 1986年日本特大恐怖袭击,若嫌犯不计算错误,七国首脑将难逃厄运
-
2025-08-10 12:15:36
-
- 于小伟与高圆圆分手11年,他娶普通妻子翻红,她嫁小老公高龄产女
-
2025-08-10 12:13:21
-
- 中央苏区第五次反围剿
-
2025-08-10 12:11:06
-
- 正阳二高逆境转型写辉煌
-
2025-08-10 12:08:51
-
- 中华药膳秘方大全(一),收藏起来慢慢看吧
-
2025-08-10 12:06:36
-
- 安徽省宁国市概况
-
2025-08-10 12:04:20
-
- 赌王11个女儿,有人说超英最美,也有人说超欣最美,超琼最有气质!
-
2025-08-10 12:02:05



乔任梁遗照(乔任梁 遗照)
刘德华两个儿子(刘德华有个儿子)
车晓老公(车晓老公个人资料)
民国四大无耻文人:郭沫若/老舍/臧克家/冯友兰(四大文人败类)
黄海波的父亲(黄海波父亲是黄宗洛)
三公的游戏规则是什么?一般可以几个人玩?
退役后,申请二次入伍的条件及优待
QRL遗照手臂太可怕(qrl遗照手臂丢失)
章子怡国籍是哪国(章子怡是中国籍吗)
原神刻晴的乳液狂飙图片刻晴乳液狂飙图是什么漫画